Article by:  Karen Brune Mathis | Jax Daily Record | Click here to read the full article.

The city issued a permit Dec. 5 for Hawkins Construction Inc. of Tarpon Springs to build Publix Super Markets Inc.’s Marketplace at Nocatee grocery store at a project cost of $14 million.
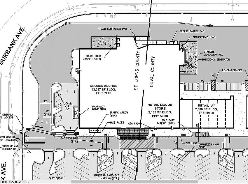
The 49,785-square-foot supermarket, drive-thru pharmacy and liquor store will be built on 10.93 acres at 75 Irondale Road.
The supermarket will be joined by two multitenant retail buildings of 9,100 and 8,400 square feet that are a combined project cost of $2.7 million. Those permits are in review.
The city issued a site-clearing permit June 12 at a project cost of $750,000 for Vallencourt Construction Co. Inc. of Green Cove Springs to clear 18 acres.
The store and shopping center are in Duval and St. Johns counties.
The project is south of Nocatee Parkway and west of Valley Ridge Boulevard at Burbank Avenue.
Vallencourt Construction is shown as the contractor for clearing, grading, earthwork, storm drainage and underground utilities for the construction of the shopping center.

Lakeland-based Publix bought the property May 15 for $6.66 million.
The majority of the property is in Duval County, which is consolidated with the city of Jacksonville.
St. Johns County Growth Management said previously that St. Johns and Duval counties worked together on the permitting.
St. Johns County permitted the entry road because it connected to the county right-of-way while Duval County is permitting the buildings.
The shopping center plans show Publix is in St. Johns County while the Publix Liquors store and two multitenant retail buildings totaling 17,500 square feet are in Duval County.
Five outparcels range from 0.9 to 2.01 acres, with most of them in Duval. Part of the 2.01-acre Parcel 1 is in St. Johns County.

England-Thims & Miller Inc. of Jacksonville is the civil engineer. Ervin Lovett Miller of Jacksonville is the planning and architecture firm.
DDI Inc. of Jacksonville sold the property through Sonoc Company LLC.
DDI is a holding company owned by the Davis family. The family has been developing the Nocatee residential and commercial area with The PARC Group.
The Daily Record reported in October 2022 that Publix would need to work with both counties to properly rezone the property.

Publix already has a presence in Nocatee Town Center in the St. Johns County part of Nocatee.
It opened a full-line Publix at 120 Marketside Ave. and a GreenWise Market nearby at 250 Pine Lake Drive, both in Ponte Vedra Beach.
The new Publix is about 2 miles west.
Jacksonville-based Skinner Bros. Realty is the development manager for Publix for the project and also will be handling the leasing of the retail space. Publix hired Skinner Bros. to be the fee developer and leasing agent after it bought the property.
Skinner Bros. says the development will consist of a 48,000-square-foot grocery store, 15,000 square feet of multitenant restaurant and retail space and five outparcels of 1 to 2.5 acres.